Nominated as Arch Daily’s Building of the Year 2021.

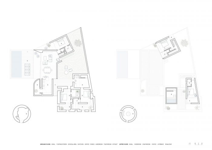
The architectural design for Casa Cabrita Moleiro was carried out by the Atelier Data architecture studio. Aiming to transform an old family mill into a holiday home with five improved suites, the project perfectly combined the heritage of the old mill with the modernity of contemporary design.

The reinterpretation of the “Açoteia Algarvia” (Algarve Roof Terrace) and incorporation of geometric and minimalist buildings allow the interiors to harmonise perfectly with the exteriors. The social objective of the architectural design was to create a large space that would encourage families to share the space and socialise. Carefully-chosen handcrafted pieces and a commitment to maintaining the historical authenticity of the structure have produced a rural, minimalist design that prioritises comfort – the perfect place from which to feel the very soul of the region.

In the Press

Atelier Data converts Portuguese mill into bright white holiday home

View Story

Casa Cabrita Moleiro / Atelier DATA

View Story

Casa do Cabrito Moleiro. A transformation (...) a holiday home

View Story

La Casa Nella campagna portoghese (...) baciati dal sol

View Story

Portuguese Holiday Home is shaped around private (...) Algarve Region

View Story

Exhibition of applicants to the Architecture Prize (...) April

View Story

Algarve Architecture Prize: 2nd Edition'22

View Story

What began as a "challenge between friends, (...) architecture.

View Story

Enjoy unforgettable experiences throughout your stay!